303 Hibiscus Trail, Melbourne Beach, FL 32951

4

BEDROOMS

3

BATHROOMS

$1,025,000

PRICE

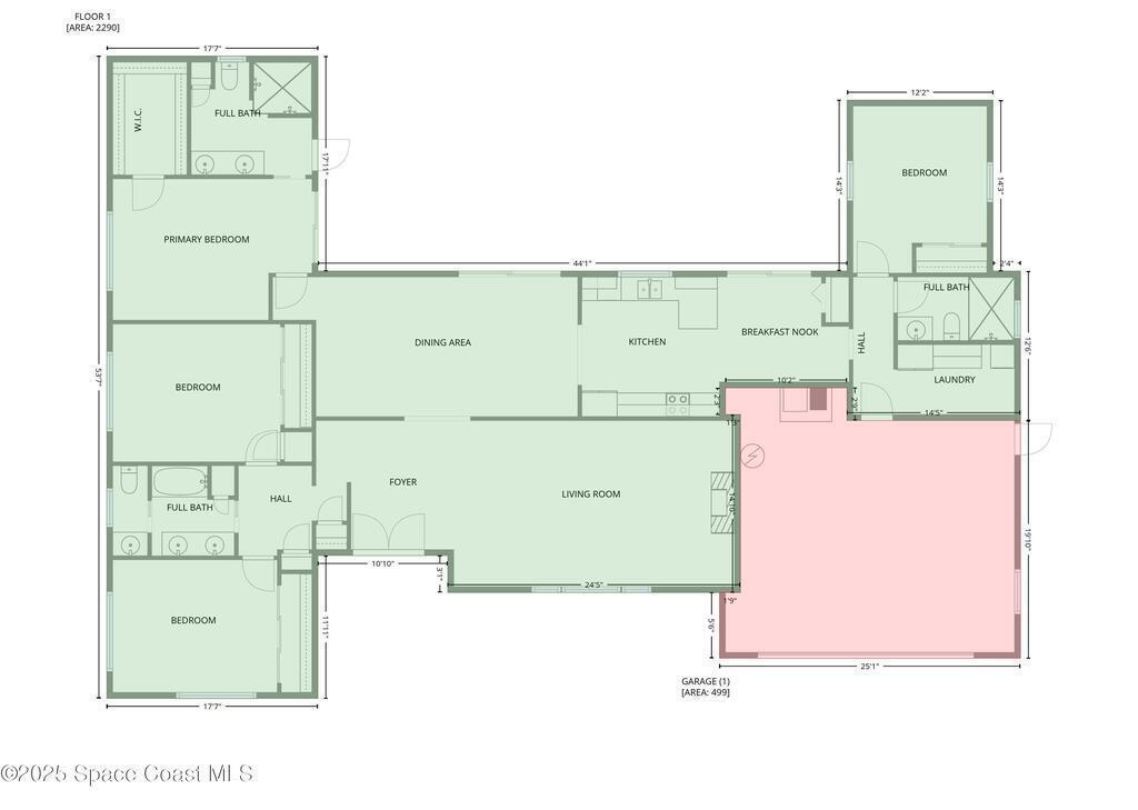
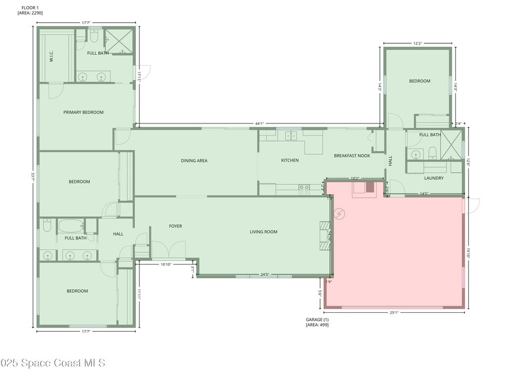
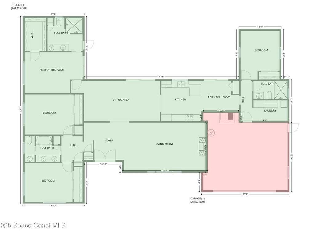
2,416

SQUARE FEET

Split Bedroom: N/A

Subdivision: Island Shores Of Melbourne Beach

MLS#: 1057618


Status: Active Under Contract

For More Information Call:

(321) 543-4374

Property Details:

Discover this beautifully renovated pool home situated on .37 acres in the highly desired SOFA area of Melbourne Beach! This 4-bedroom, 3-FULL bathrooms, concrete block residence offers exclusive beach access shared with just 20 other homes, allowing you to reach the sand in a quick 5 minute walk. Enjoy features like wood-look tile flooring throughout, a wood burning fireplace, hurricane impact windows and doors, as well as updated electrical & plumbing and a 2020 HVAC system! The kitchen boasts ample storage with a pool view, while the laundry room includes an extra refrigerator! Outdoors, relax in the spacious east-facing covered lanai, listen to the ocean waves, or take a dip in the large pool surrounded by a paver deck and fully fenced yard, complemented by a storage shed and low-maintenance xeriscaping. With gates on both sides, there's ample room for a boat or RV, a huge circular driveway for family gatherings, and an oversized 2-car garage for all your beach gear. Conveniently


Broker Reciprocity Logo

This listing is courtesy of Dale Sorensen Real Estate Inc.. Property Listing Data contained within this site is the property of Brevard MLS and is provided for consumers looking to purchase real estate. Any other use is prohibited. We are not responsible for errors and omissions on this web site. All information contained herein should be deemed reliable but not guaranteed, all representations are approximate, and individual verification is recommended.

  • Acreage0.37
  • Area384-Indialantic/Melbourne Beach
  • Assoc/HOA ContactOcean Trails
  • Baths - Full3
  • Baths - Total3
  • Bedrooms4
  • CityMelbourne Beach
  • Community FeesNo
  • ConstructionBlock and Stucco
  • ContingentActive Under Contract
  • CoolingCentral Air and Split System
  • CountyBrevard
  • DirectionsTake S Miramar Ave to Right on Magnlia Ave, then left on Hibiscus Trail. House is 2nd home on the left.
  • Dwelling ViewPool
  • Equipment/AppliancesDishwasher, Dryer, Electric Range, Microwave, Refrigerator and Washer
  • Exterior FeaturesImpact Windows
  • FireplaceWood Burning
  • FloorTile
  • FurnishedUnfurnished
  • General County LocationSouth
  • HeatCentral
  • Interior FeaturesBreakfast Bar, Breakfast Nook, Ceiling Fan(s), Eat-in Kitchen, In-Law Floorplan, Open Floorplan, Pantry, Primary Bathroom - Shower No Tub and Primary Downstairs
  • List Price/SqFt$424.25 / sqft
  • Listing ID1057618
  • Listing StatusActive Under Contract
  • Lot DescriptionOther
  • Lot SqFt16,117 sqft
  • ParkingAttached, Circular Driveway, Garage, Garage Door Opener and RV Access/Parking
  • Pet RestrictionsCats OK and Dogs OK
  • PetsCats OK and Dogs OK
  • PoolYes
  • Pool FeaturesIn Ground
  • PossessionClose Of Escrow
  • Private PoolYes
  • Property TypeResidential
  • Residential Sub-TypeSingle Family Residence
  • Road SurfaceAsphalt
  • RoofShingle
  • ShowingAppointment Only,Showing Service
  • Sold Terms CodeCash,Conventional,FHA,Other,VA Loan
  • SqFt - Living2,416 sqft
  • State/ProvinceFL
  • StatusActive Under Contract
  • Status Change DateTuesday, December 16th, 2025
  • Street NameHibiscus
  • Street Number303
  • Street SuffixTrail
  • StyleRanch
  • SubdivisionIsland Shores Of Melbourne Beach
  • Tax Year2022
  • Taxes$6,951.13
  • To Be ConstructedNo
  • Total Garage Spaces2
  • UtilitiesCable Connected, Electricity Connected, Sewer Connected and Water Connected
  • WaterfrontNo
  • Year Built1962
  • Zip Code32951

Share

Subscribe