495 Strand Drive, Melbourne Beach, FL 32951

4

BEDROOMS

6

BATHROOMS

$899,900

PRICE

3,209

SQUARE FEET

Split Bedroom: N/A

Subdivision: Harbor Island Beach Club

MLS#: 1060089


Status: Active

For More Information Call:

(321) 543-4374

Property Details:

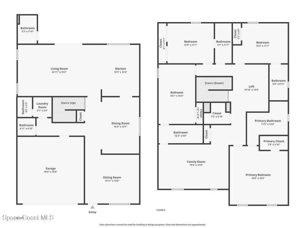
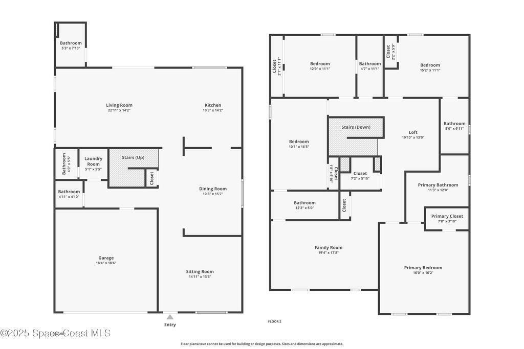
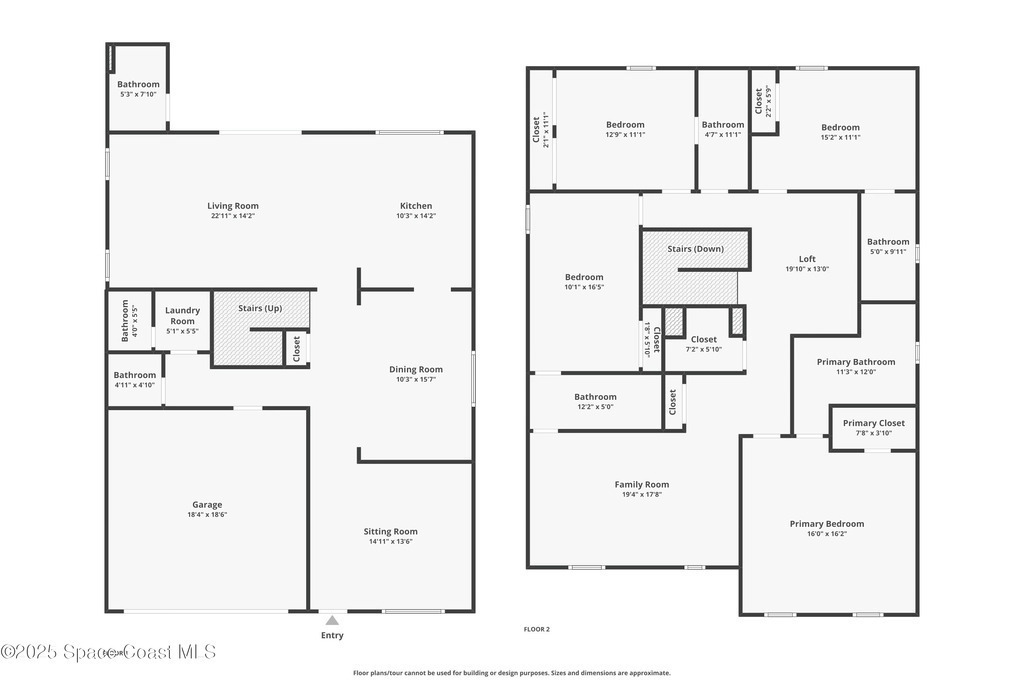
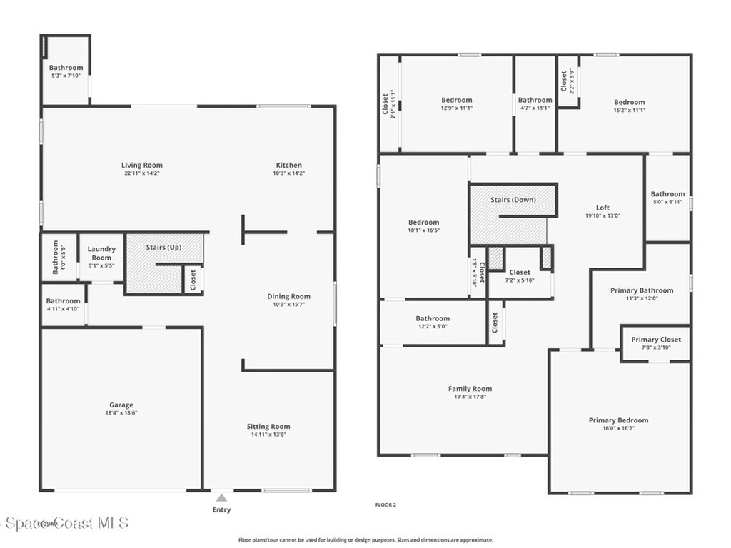
Experience luxury coastal living in this four bedroom five and a half bathroom pool home on a premier corner lot in the gated Harbor Island Beach Club of Melbourne Beach. The open layout features soaring ceilings, designer finishes, tiled spa inspired baths, and an abundance of windows that fill the home with natural light. Large sliders create a seamless flow to the paver lanai, private pool, and in ground hot tub. The primary suite offers a beautifully appointed bathroom with two separate vanities and a spacious layout. Resort style community amenities include private beach access and intracoastal access. Zoned for short term rentals, this residence offers strong income potential. Furnishings are negotiable. Enjoy sunrise over the Atlantic and sunset over the Indian River while still being close to the Kennedy Space Center and within reach of Orlando attractions. This home captures the best of the Space Coast lifestyle. Schedule a private tour today!


Broker Reciprocity Logo

This listing is courtesy of Real Broker, LLC. Property Listing Data contained within this site is the property of Brevard MLS and is provided for consumers looking to purchase real estate. Any other use is prohibited. We are not responsible for errors and omissions on this web site. All information contained herein should be deemed reliable but not guaranteed, all representations are approximate, and individual verification is recommended.

  • Acreage0.15
  • Area384-Indialantic/Melbourne Beach
  • Assoc/HOA ContactAdvanced Property Management
  • Baths - Full5
  • Baths - Half1
  • Baths - Total6
  • Bedrooms4
  • CityMelbourne Beach
  • Community FeesNo
  • ConstructionConcrete, Frame, Other and Stucco
  • CoolingCentral Air
  • CountyBrevard
  • DirectionsI-95 N or S to 192 East. Head South on A1A. Harbor Island Beach Club is on the right side. Turn R on to Strand Dr
  • Dwelling ViewPool
  • Equipment/AppliancesDishwasher, Disposal, Dryer, Electric Oven, Electric Range, Electric Water Heater, Microwave, Refrigerator and Washer
  • Exterior FeaturesImpact Windows
  • FloorTile
  • FurnishedNegotiable
  • General County LocationSouth
  • HeatCentral
  • Interior FeaturesBreakfast Bar, Jack and Jill Bath, Open Floorplan, Other and Walk-In Closet(s)
  • List Price/SqFt$280.43 / sqft
  • Listing ID1060089
  • Listing StatusActive
  • Lot DescriptionCorner Lot
  • Lot SqFt6,534 sqft
  • ParkingGarage and Garage Door Opener
  • Pet RestrictionsYes
  • PetsYes
  • PoolYes
  • Pool FeaturesFenced, Heated and In Ground
  • PossessionClose Of Escrow
  • Private PoolYes
  • Property TypeResidential
  • Rental RestrictionsNo Minimum
  • Residential Sub-TypeSingle Family Residence
  • Road SurfacePaved
  • RoofMetal
  • Sold Terms CodeCash,Conventional,FHA,VA Loan
  • SqFt - Living3,209 sqft
  • State/ProvinceFL
  • StatusActive
  • Status Change DateMonday, October 20th, 2025
  • Street NameStrand
  • Street Number495
  • Street SuffixDrive
  • SubdivisionHarbor Island Beach Club
  • Tax Year2025
  • To Be ConstructedNo
  • Total Garage Spaces2
  • UnBranded Virtual TourClick Here
  • UtilitiesCable Available, Cable Connected, Electricity Available, Electricity Connected, Sewer Available, Sewer Connected, Water Available and Water Connected
  • WaterfrontNo
  • Year Built2022
  • Zip Code32951

Share

Subscribe