2444 Nobility Avenue, Melbourne, FL 32934

4

BEDROOMS

2

BATHROOMS

$508,000

PRICE

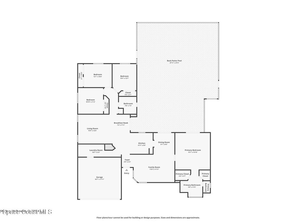
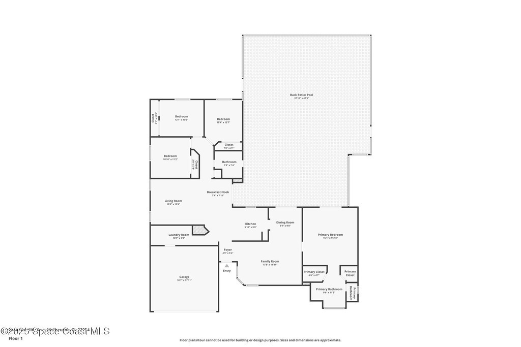
1,886

SQUARE FEET

Split Bedroom: N/A

Subdivision: Kingsmill

MLS#: 1060343


Status: Active Under Contract

For More Information Call:

(321) 543-4374

Property Details:

**Price Improvement**Welcome to this stylish Melbourne pool home with an outdoor Oasis! Beautifully maintained 4-bed, 2-bath home featuring a bright split floor plan and thoughtful upgrades throughout. Enjoy a sparkling screened pool with covered patio, perfect for relaxing or entertaining. A 9x40 concrete slab offers ideal RV or boat parking, while a 10x20 shed adds extra storage for tools or hobbies. The 80-ft well supplies irrigation and pool refills, and the Generac generator provides peace of mind for most items in the home year-round. Inside, find a spacious laundry room with built-ins, open living areas, and a p


Broker Reciprocity Logo

This listing is courtesy of J. Edwards Real Estate. Property Listing Data contained within this site is the property of Brevard MLS and is provided for consumers looking to purchase real estate. Any other use is prohibited. We are not responsible for errors and omissions on this web site. All information contained herein should be deemed reliable but not guaranteed, all representations are approximate, and individual verification is recommended.

  • Acreage0.24
  • Area321 - Lake Washington/S of Post
  • Assoc/HOA ContactKingsmill
  • Association Fee IncludedMaintenance Grounds
  • Baths - Full2
  • Baths - Total2
  • Bedrooms4
  • CityMelbourne
  • Community FeesNo
  • ConstructionBlock, Brick and Concrete
  • ContingentActive Under Contract
  • CoolingCentral Air
  • CountyBrevard
  • DirectionsFrom I-95 north or south, take Exit 188 toward US-1/ SR-5.Continue on US-1 north for approximately 2.5 miles then turn right onto Kingsmill Ave.Follow Kingsmill Ave about 0.8 miles, then turn left onto Nobility Ave.
  • Equipment/AppliancesDishwasher, Disposal, Gas Range and Microwave
  • FurnishedUnfurnished
  • General County LocationSouth
  • Green Water FeaturesWater-Smart Landscaping
  • HeatCentral, Hot Water and Natural Gas
  • Interior FeaturesCeiling Fan(s), Entrance Foyer, Primary Bathroom - Shower No Tub, Split Bedrooms, Vaulted Ceiling(s) and Walk-In Closet(s)
  • List Price/SqFt$269.35 / sqft
  • Listing ID1060343
  • Listing StatusActive Under Contract
  • Lot DescriptionFew Trees, Sprinklers In Front and Sprinklers In Rear
  • Lot SqFt10,454.40 sqft
  • ParkingAdditional Parking, Attached, Garage, Garage Door Opener, On Street and RV Access/Parking
  • Pet RestrictionsCats OK and Dogs OK
  • PetsCats OK and Dogs OK
  • PoolYes
  • Pool FeaturesIn Ground
  • PossessionClose Of Escrow
  • Private PoolYes
  • Property TypeResidential
  • Residential Sub-TypeSingle Family Residence
  • Road SurfaceAsphalt
  • RoofShingle
  • Security/SafetySmoke Detector(s)
  • ShowingShowing Service
  • Sold Terms CodeCash,Conventional,FHA,VA Loan
  • SqFt - Living1,886 sqft
  • State/ProvinceFL
  • StatusActive Under Contract
  • Status Change DateMonday, December 22nd, 2025
  • Street NameNobility
  • Street Number2444
  • Street SuffixAvenue
  • StyleTraditional
  • SubdivisionKingsmill
  • Tax Year2024
  • Taxes$5,469.46
  • To Be ConstructedNo
  • Total Garage Spaces2
  • UnBranded Virtual TourClick Here
  • UtilitiesCable Available, Electricity Available, Electricity Connected, Natural Gas Available, Natural Gas Connected, Sewer Available, Sewer Connected, Water Available and Water Connected
  • WaterfrontNo
  • Year Built1987
  • Zip Code32934
  • ZoningSingle Family

Share

Subscribe