839 Hawksbill Island Drive, Satellite Beach, 32937

4

BEDROOMS

3

BATHROOMS

$1,100,000

PRICE

2,981

SQUARE FEET

Split Bedroom: N/A

Subdivision: Tortoise Island Ph 2 Unit 1 Pud

MLS#: 1060711


Status: Active Under Contract

For More Information Call:

(321) 543-4374

Property Details:

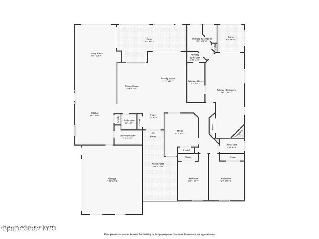
A rare waterfront opportunity on the Grand Canal, this 4 bed, 2.5 bath Tortoise Island home offers 2,981 sq ft of single-level living with panoramic canal views from nearly every room. A 57 ft dock on deep water invites boating, kayaking & sunset watching right from your backyard. Inside, tile flooring flows throughout, and the primary suite features a wood-burning fireplace, oversized walk-in closet & private screened porch overlooking the water. The expansive yard has room for a pool, while updates include 2022 storm shutters, 2019 windows, impact glass on four front windows, a manual roll-down shutter on the front door & three electric shutters plus one panel window in the family room. Tortoise Island residents enjoy resort-style amenities including tennis courts, boat ramp, clubhouse, pool, private docks, fitness center, playground & sauna, all within one of Satellite Beach's most desirable waterfront communities.


Broker Reciprocity Logo

This listing is courtesy of Compass Florida, LLC. Property Listing Data contained within this site is the property of Brevard MLS and is provided for consumers looking to purchase real estate. Any other use is prohibited. We are not responsible for errors and omissions on this web site. All information contained herein should be deemed reliable but not guaranteed, all representations are approximate, and individual verification is recommended.

  • Acreage0.35
  • Area381 - N Satellite Beach
  • Assoc/HOA ContactTortoise Island HOA
  • Association Fee IncludedMaintenance Grounds and Security
  • Baths - Full2
  • Baths - Half1
  • Baths - Total3
  • Bedrooms4
  • CitySatellite Beach
  • Community FeesNo
  • ConstructionBlock, Concrete and Stucco
  • ContingentActive Under Contract
  • CoolingCentral Air
  • CountyBrevard
  • DirectionsHighway A1A N/S to Jackson Ave Turn West on Jackson AveTurn Right on S Patrick Dr. Turn left on Tortoise Dr. Turn left on Hawksbill Island Dr.
  • Dwelling ViewCanal and Water
  • Equipment/AppliancesDishwasher, Disposal, Dryer, Electric Cooktop, Electric Oven, Electric Water Heater, Freezer, Microwave, Refrigerator and Washer
  • Exterior FeaturesBoat Lift, Dock, Impact Windows and Storm Shutters
  • FloorTile
  • FurnishedUnfurnished
  • General County LocationSouth
  • HeatCentral and Electric
  • Interior FeaturesBuilt-in Features, Ceiling Fan(s), Eat-in Kitchen, Kitchen Island, Open Floorplan, Primary Downstairs, Skylight(s), Split Bedrooms, Vaulted Ceiling(s) and Walk-In Closet(s)
  • List Price/SqFt$369 / sqft
  • Listing ID1060711
  • Listing StatusActive Under Contract
  • Lot DescriptionCul-De-Sac, Sprinklers In Front and Sprinklers In Rear
  • Lot SqFt15,246 sqft
  • ParkingAttached, Garage and Garage Door Opener
  • Pet RestrictionsYes
  • PetsYes
  • PoolNo
  • PossessionClose Of Escrow
  • Private PoolNo
  • Property TypeResidential
  • Rental Restrictions1 Year
  • Residential Sub-TypeSingle Family Residence
  • Road SurfacePaved
  • RoofShingle
  • Security/SafetyGated with Guard and Security Gate
  • ShowingAppointment Only,Lockbox,No Sign
  • Sold Terms CodeCash,Conventional,VA Loan
  • SqFt - Living2,981 sqft
  • StatusActive Under Contract
  • Status Change DateTuesday, November 25th, 2025
  • Street NameHawksbill Island
  • Street Number839
  • Street SuffixDrive
  • SubdivisionTortoise Island Ph 2 Unit 1 Pud
  • Tax Year2025
  • To Be ConstructedNo
  • Total Garage Spaces2
  • UnBranded Virtual TourClick Here
  • UtilitiesElectricity Connected, Sewer Available and Water Available
  • WaterfrontYes
  • Waterfront TypeCanal Front,Intracoastal,Navigable Water,River Access
  • Year Built1984
  • Zip Code32937

Share

Subscribe