8600 Ridgewood Avenue, Cape Canaveral, 32920

2

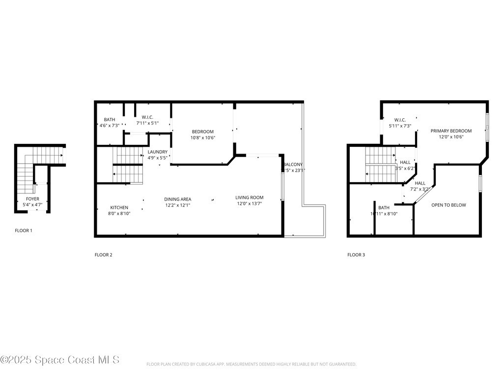
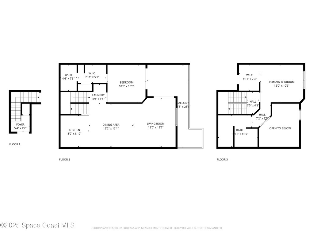
BEDROOMS

2

BATHROOMS

$555,000

PRICE

1,058

SQUARE FEET

Split Bedroom: N/A

Subdivision: Royal Mansion Condo

MLS#: 1060749


Status: Active

For More Information Call:

(321) 543-4374

Property Details:

Welcome to your dream beachfront escape at the private gated community of Royal Mansions Condos. Experience luxurious living in this beautifully updated 2 bed, 2 bath loft-style, penthouse condo! This modern retreat offers a perfect blend of contemporary design and coastal charm, complete with a spacious patio for outdoor relaxation and front row seats to viewing rocket launches. Enjoy direct beach access and relaxing by the pool. The living area features an open layout with chic furnishings, and plenty of natural light, creating a welcoming space for relaxation and entertainment. The bedrooms are designed for comfort, with ample closet space, and tasteful decor. Both bedrooms include a luxurious en-suite bathroom. The kitchen is a chef's dream, equipped with state-of-the-art appliances, sleek countertops, and all the essentials for preparing gourmet meals. With easy access to highways, the Space Center, jetty park! Whether you're seeking a permanent residence, vacation home, or an


Broker Reciprocity Logo

This listing is courtesy of Blue Marlin Real Estate. Property Listing Data contained within this site is the property of Brevard MLS and is provided for consumers looking to purchase real estate. Any other use is prohibited. We are not responsible for errors and omissions on this web site. All information contained herein should be deemed reliable but not guaranteed, all representations are approximate, and individual verification is recommended.

  • Acreage0.08
  • Area271 - Cape Canaveral
  • Assoc/HOA ContactRoyal Mansion Condos
  • Association Fee IncludedCable TV, Internet, Maintenance Grounds, Pest Control, Sewer, Trash and Water
  • Baths - Full2
  • Baths - Total2
  • Bedrooms2
  • CityCape Canaveral
  • Community FeesNo
  • ConstructionBlock, Concrete and Stucco
  • CoolingCentral Air and Electric
  • CountyBrevard
  • DirectionsSR 528 turns into A1A in Cape Canaveral. Turn E onto Central Ave, until street dead ends, proceed to Bldg #3 (facing south on the far right).
  • Dwelling ViewOcean
  • Equipment/AppliancesDishwasher, Dryer, Electric Range, Electric Water Heater, Microwave, Refrigerator and Washer
  • Exterior FeaturesBalcony
  • FloorTile and Vinyl
  • FurnishedFurnished
  • General County LocationCentral
  • HeatCentral and Electric
  • Interior FeaturesCeiling Fan(s), Entrance Foyer, Open Floorplan, Primary Bathroom - Shower No Tub and Split Bedrooms
  • List Price/SqFt$524.57 / sqft
  • Listing ID1060749
  • Listing StatusActive
  • Lot DescriptionOther
  • Lot SqFt3,485 sqft
  • ParkingGated, Secured and Unassigned
  • Pet RestrictionsCall
  • PetsCall
  • PoolNo
  • PossessionClose Of Escrow
  • Private PoolNo
  • Property TypeResidential
  • Rental Restrictions1 Week
  • Residential Sub-TypeCondo
  • Road SurfaceAsphalt
  • RoofMembrane
  • Security/SafetySecurity Gate
  • ShowingShowing Service
  • Sold Terms CodeCash,Conventional
  • SqFt - Living1,058 sqft
  • StatusActive
  • Status Change DateWednesday, October 29th, 2025
  • Street NameRidgewood
  • Street Number8600
  • Street SuffixAvenue
  • SubdivisionRoyal Mansion Condo
  • Tax Year2025
  • Taxes$4,055.45
  • To Be ConstructedNo
  • Total Floors in Building4
  • Total Floors/Stories4
  • Unit Number3310
  • UtilitiesCable Connected, Electricity Connected, Sewer Connected and Water Connected
  • WaterfrontYes
  • Waterfront TypeOcean Access
  • Year Built1988
  • Zip Code32920

Share

Subscribe