1050 N Atlantic Avenue, Cocoa Beach, FL 32931

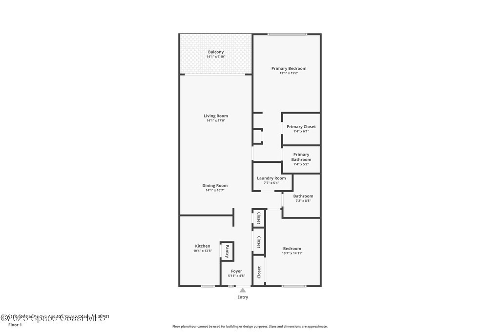
2

BEDROOMS

2

BATHROOMS

$599,000

PRICE

1,286

SQUARE FEET

Split Bedroom: N/A

Subdivision: Sandcastles Condo

MLS#: 1061522


Status: Active

For More Information Call:

(321) 543-4374

Property Details:

LIVE INVEST. REPEAT. This ocean-view beauty has been fully renovated, fully furnished, and totally dialed in for the ultimate beachside lifestyle. Step inside to a bright, coastal-modern vibe with a stunning quartz kitchen, luxury baths, soft-close cabinetry, stainless appliances, and full-size laundry. Spacious and turnkey, this 2BD/2BA delivers strong income potential with a proven weekly rental track record and professional management already in place. Enjoy resort-style living with a heated pool, hot tub, tennis courts, community room, grill station, and private beach access. Whether you're chasing sunsets, rental income, or a home base in paradise, this one checks every box!


Broker Reciprocity Logo

This listing is courtesy of Real Broker LLC. Property Listing Data contained within this site is the property of Brevard MLS and is provided for consumers looking to purchase real estate. Any other use is prohibited. We are not responsible for errors and omissions on this web site. All information contained herein should be deemed reliable but not guaranteed, all representations are approximate, and individual verification is recommended.

  • Acreage0.05
  • Area272 - Cocoa Beach
  • Assoc/HOA ContactSandcastles c/o Sentry Management
  • Association Fee IncludedCable TV, Insurance, Internet, Sewer, Trash and Water
  • Baths - Full2
  • Baths - Total2
  • Bedrooms2
  • CityCocoa Beach
  • Community FeesNo
  • ConstructionBlock, Concrete and Stucco
  • CoolingCentral Air and Electric
  • CountyBrevard
  • DirectionsFrom Highway 520 or 528 go South on N Atlantic Ave. Hwy A1A. At 1050 N Atlantic Ave, turn Left into Sandcastles. The building is on the Left side of condo complex.
  • Dwelling ViewBeach, Ocean and Water
  • Equipment/AppliancesDishwasher, Disposal, Electric Oven, Electric Range, Microwave, Refrigerator and Washer
  • Exterior FeaturesBalcony
  • FloorTile
  • FurnishedFurnished
  • General County LocationCentral
  • HeatCentral and Electric
  • Interior FeaturesBreakfast Bar, Ceiling Fan(s), Elevator, Pantry, Primary Bathroom - Tub with Shower and Walk-In Closet(s)
  • List Price/SqFt$465.79 / sqft
  • Listing ID1061522
  • Listing StatusActive
  • Lot DescriptionOther
  • Lot SqFt2,178 sqft
  • ParkingDetached, Garage, Garage Door Opener, Guest and Parking Lot
  • Pet RestrictionsNumber Limit, Size Limit and Yes
  • PetsNumber Limit, Size Limit and Yes
  • PoolNo
  • PossessionClose Of Escrow
  • Private PoolNo
  • Property TypeResidential
  • Rental Restrictions1 Week,3 Days
  • Residential Sub-TypeCondo
  • Road SurfaceAsphalt
  • RoofMembrane
  • Security/SafetySecured Elevator and Smoke Detector(s)
  • ShowingAppointment Only,Other
  • Sold Terms CodeCash,Conventional,FHA,VA Loan
  • SqFt - Living1,286 sqft
  • State/ProvinceFL
  • StatusActive
  • Status Change DateThursday, November 6th, 2025
  • Street DirectionN
  • Street NameAtlantic
  • Street Number1050
  • Street SuffixAvenue
  • SubdivisionSandcastles Condo
  • Tax Year2025
  • To Be ConstructedNo
  • Total Floors in Building7
  • Total Floors/Stories7
  • Total Garage Spaces1
  • Unit Number402
  • UtilitiesCable Connected, Electricity Connected, Sewer Connected and Water Connected
  • WaterfrontYes
  • Waterfront TypeOcean Access,Ocean Front
  • Year Built1985
  • Zip Code32931

Share

Subscribe