485 Milford Point Drive, Merritt Island, FL 32952

3

BEDROOMS

3

BATHROOMS

$899,000

PRICE

2,374

SQUARE FEET

Split Bedroom: N/A

Subdivision: Milford Point Beach Subd

MLS#: 1063111


Status: Active

For More Information Call:

(321) 543-4374

Property Details:

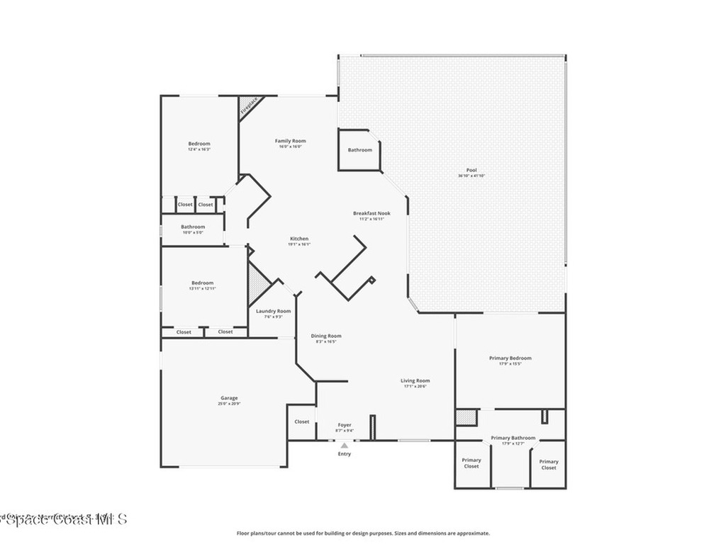
Discover an incredible waterfront opportunity--ready for someone to bring their personal touch and elevate it into a true coastal retreat. Perfectly positioned on a navigable canal with quick access to the Banana River and just minutes from the Port, this home offers the ideal blend of Florida living and endless potential. Step outside to an impressive screened-in pool area featuring a serene waterfall, relaxing hot tub, and an electric heater for year-round enjoyment. A convenient half bathroom serves the pool deck, making outdoor entertaining effortless. For the boating enthusiast, the property includes power at the dock and a 20,000-pound lift, creating an easy launch into the open water. Inside, the home features a fabulous and flexible floor plan with two separate living areas, a formal dining room, and a dedicated bar, perfect for hosting gatherings. The split layout ensures privacy, while the generously sized bedrooms offer comfort for family and guests.


Broker Reciprocity Logo

This listing is courtesy of RE/MAX Aerospace Realty. Property Listing Data contained within this site is the property of Brevard MLS and is provided for consumers looking to purchase real estate. Any other use is prohibited. We are not responsible for errors and omissions on this web site. All information contained herein should be deemed reliable but not guaranteed, all representations are approximate, and individual verification is recommended.

  • Acreage0.25
  • Area252 - N Banana River Dr.
  • Baths - Full2
  • Baths - Half1
  • Baths - Total3
  • Bedrooms3
  • CityMerritt Island
  • Community FeesNo
  • ConstructionFrame and Stucco
  • CoolingCentral Air and Electric
  • CountyBrevard
  • DirectionsFrom 520- go north on Milford Point. House is on the left.
  • Dwelling ViewCreek/Stream, Pool and Water
  • Equipment/AppliancesDishwasher, Electric Range, Microwave and Refrigerator
  • Exterior FeaturesBoat Lift, Dock, Outdoor Shower and Storm Shutters
  • FireplaceElectric
  • FloorCarpet and Tile
  • FurnishedUnfurnished
  • General County LocationCentral
  • HeatElectric
  • Interior FeaturesBreakfast Bar, Ceiling Fan(s), His and Hers Closets, Kitchen Island, Primary Bathroom -Tub with Separate Shower, Split Bedrooms, Vaulted Ceiling(s) and Walk-In Closet(s)
  • List Price/SqFt$378.69 / sqft
  • Listing ID1063111
  • Listing StatusActive
  • Lot DescriptionDead End Street
  • Lot SqFt10,890 sqft
  • ParkingAttached and Garage
  • PoolYes
  • Pool FeaturesElectric Heat and In Ground
  • PossessionClose Of Escrow
  • Private PoolYes
  • Property TypeResidential
  • Residential Sub-TypeSingle Family Residence
  • Road SurfaceAsphalt
  • RoofShingle
  • ShowingShowing Service
  • Sold Terms CodeCash,Conventional,FHA,VA Loan
  • SqFt - Living2,374 sqft
  • State/ProvinceFL
  • StatusActive
  • Status Change DateTuesday, December 16th, 2025
  • Street NameMilford Point
  • Street Number485
  • Street SuffixDrive
  • SubdivisionMilford Point Beach Subd
  • Tax Year2024
  • Taxes$5,231.20
  • To Be ConstructedNo
  • Total Garage Spaces2
  • UnBranded Virtual TourClick Here
  • UtilitiesElectricity Available and Water Available
  • WaterfrontYes
  • Waterfront TypeCreek,Navigable Water,Ocean Access,River Access
  • Year Built1989
  • Zip Code32952

Share

Subscribe