750 W Whitmire Drive, Melbourne, FL 32935

5

BEDROOMS

3

BATHROOMS

$798,000

PRICE

3,086

SQUARE FEET

Split Bedroom: N/A

Subdivision: Loveridge Heights Subd

MLS#: 1063313


Status: Active

For More Information Call:

(321) 543-4374

Property Details:

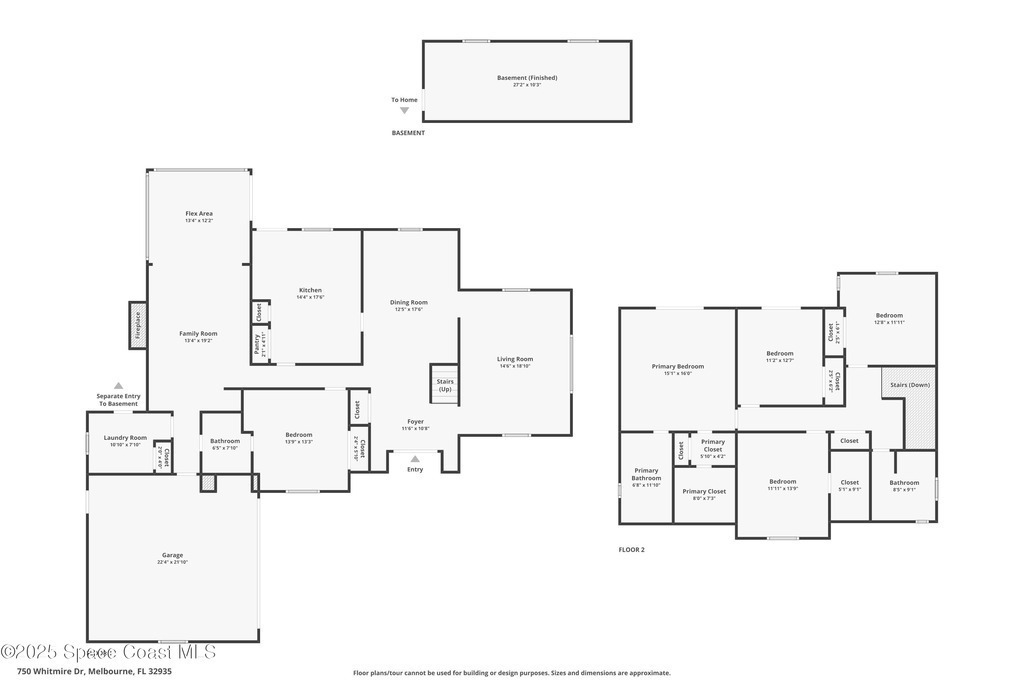
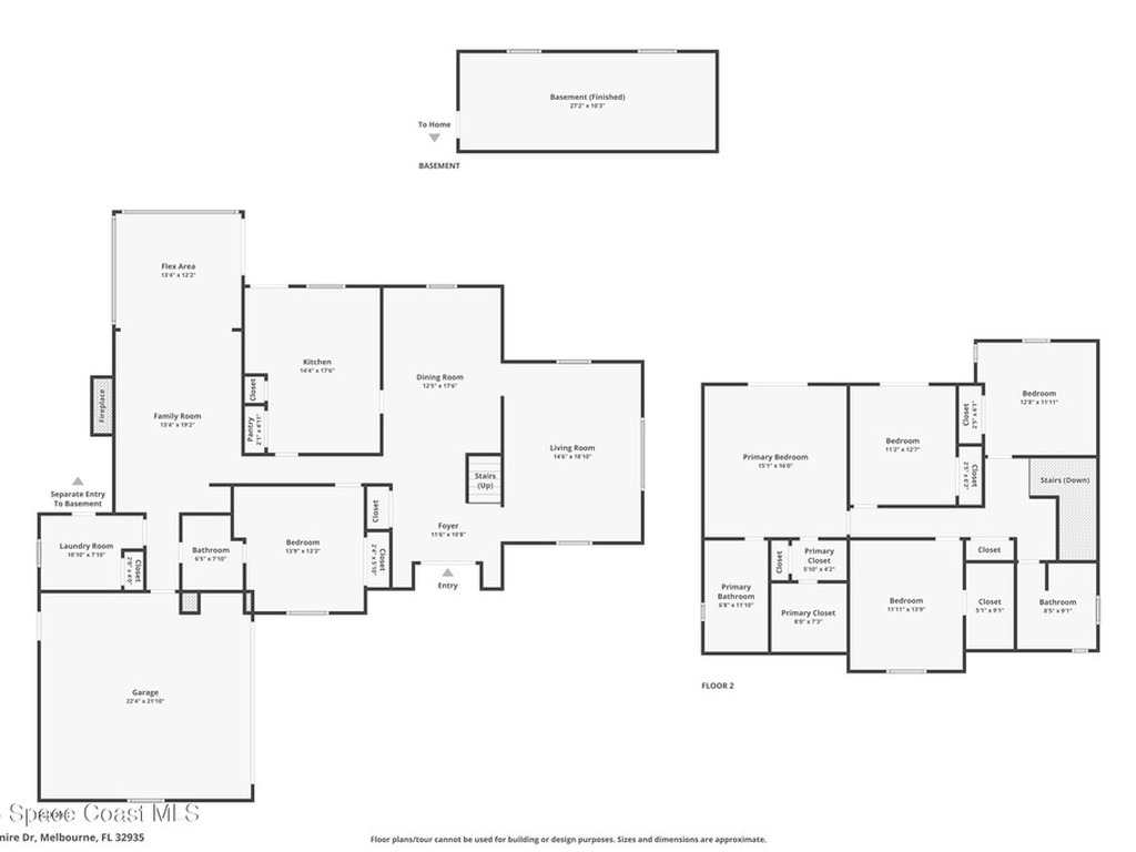
Waterfront home - with a BASEMENT! Located in Ballard Park, this 5 bedroom, 3 bath Melbourne home gives you 100 feet of canal frontage and direct access to the Indian River Lagoon from your backyard. Inside, an updated layout features a clean modern kitchen, refreshed baths, vinyl flooring throughout the main level, and a step-down sunken living room that pulls your eye to the water. Three upstairs bedrooms open to a shared balcony that runs along the canal, while a finished bump-out lower level creates a true bonus room for media, gym, studio, or play - a rare find in this area of Florida. An oversized two-car garage, no HOA, and low-maintenance finishes keep daily life easy. No bridge height restrictions and future dock potential invites you to bring the big boats and kayaks. From here it's a short walk to Ballard Park's boat ramp, tennis courts, and riverfront green space, and just minutes to Downtown Eau Gallie, Historic Downtown Melbourne, shopping, dining, and the beaches.


Broker Reciprocity Logo

This listing is courtesy of Blue Marlin Real Estate. Property Listing Data contained within this site is the property of Brevard MLS and is provided for consumers looking to purchase real estate. Any other use is prohibited. We are not responsible for errors and omissions on this web site. All information contained herein should be deemed reliable but not guaranteed, all representations are approximate, and individual verification is recommended.

  • Acreage0.48
  • Area323 - Eau Gallie
  • Baths - Full3
  • Baths - Total3
  • Bedrooms5
  • CityMelbourne
  • Community FeesNo
  • ConstructionBlock and Stucco
  • CoolingCentral Air, Electric and Multi Units
  • CountyBrevard
  • DirectionsFrom Eau Gallie Blvd and US-1 (N Harbor City Blvd), head south on US-1. Turn left onto Whitmire Dr and follow to 750 W Whitmire Dr; home will be on the left.
  • Dwelling ViewIntracoastal, River, Trees/Woods and Water
  • Equipment/AppliancesDishwasher, Disposal, Electric Range, Electric Water Heater, Ice Maker, Microwave, Other, Plumbed For Ice Maker and Refrigerator
  • Exterior FeaturesBalcony and Other
  • FloorCarpet and Vinyl
  • FurnishedUnfurnished
  • General County LocationSouth
  • HeatCentral and Electric
  • Interior FeaturesCeiling Fan(s), Entrance Foyer, His and Hers Closets, Open Floorplan, Pantry, Primary Bathroom - Tub with Shower and Wet Bar
  • List Price/SqFt$258.59 / sqft
  • Listing ID1063313
  • Listing StatusActive
  • Lot DescriptionCleared and Few Trees
  • Lot SqFt20,909 sqft
  • ParkingCircular Driveway, Garage, Garage Door Opener and RV Access/Parking
  • Pet RestrictionsCats OK, Dogs OK and Yes
  • PetsCats OK, Dogs OK and Yes
  • PoolNo
  • PossessionClose Of Escrow
  • Private PoolNo
  • Property TypeResidential
  • Residential Sub-TypeSingle Family Residence
  • Road SurfaceAsphalt
  • RoofShingle
  • Security/SafetySecurity Lights and Smoke Detector(s)
  • ShowingCombination Lock Box
  • Sold Terms CodeCash,Conventional,FHA,VA Loan
  • SqFt - Living3,086 sqft
  • State/ProvinceFL
  • StatusActive
  • Status Change DateTuesday, December 2nd, 2025
  • Street DirectionW
  • Street NameWhitmire
  • Street Number750
  • Street SuffixDrive
  • SubdivisionLoveridge Heights Subd
  • Tax Year2025
  • Taxes$12,231.70
  • To Be ConstructedNo
  • Total Garage Spaces2
  • UnBranded Virtual TourClick Here
  • UtilitiesElectricity Connected, Sewer Connected and Water Connected
  • WaterfrontYes
  • Waterfront Footage100
  • Waterfront TypeNavigable Water,No Fixed Bridges,River Access,River Front
  • Year Built1980
  • Zip Code32935

Share

Subscribe