1725 N Highway A1A, Indialantic, FL 32903

3

BEDROOMS

3

BATHROOMS

$1,425,000

PRICE

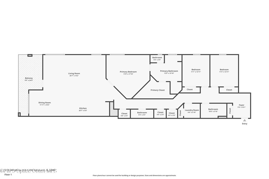
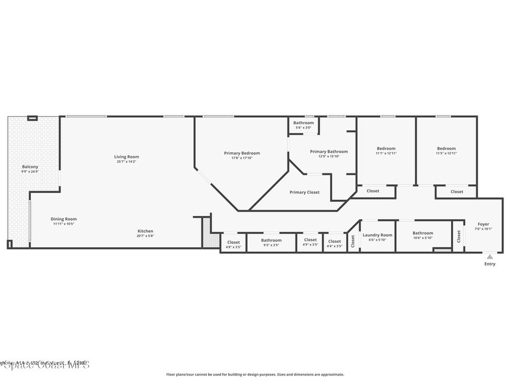
2,244

SQUARE FEET

Split Bedroom: N/A

Subdivision: Abacos

MLS#: 1063630


Status: Active Under Contract

For More Information Call:

(321) 543-4374

Property Details:

Rising five stories above the shoreline, this exclusive oceanfront community offers only 14 luxury residences, each with a private 2-car garage, air-conditioned storage, & access to a 2nd-floor clubhouse with a fitness facility. The property showcases full masonry construction, impact-rated insulated windows & doors, concrete block walls for privacy, & a tile roof with a secondary water barrier. Owners enjoy a heated pool, private beach crossover with an elevated seating area, paver motor court, & lush tropical landscaping. Inside, 10' ceilings, 13/4'' solid core doors, upgraded lighting, Kohler fixtures, & custom wallpaper elevate every detail. The family room captures unobstructed Atlantic Ocean views, while the kitchen features custom cabinetry, Cambria quartz surfaces, dovetail solid wood drawers, stainless appliances, & a breakfast bar. The primary suite offers a walk-in closet & en-suite bath with a soaking tub, dual vanity, & frameless rainhead shower.


Broker Reciprocity Logo

This listing is courtesy of Compass Florida, LLC. Property Listing Data contained within this site is the property of Brevard MLS and is provided for consumers looking to purchase real estate. Any other use is prohibited. We are not responsible for errors and omissions on this web site. All information contained herein should be deemed reliable but not guaranteed, all representations are approximate, and individual verification is recommended.

  • Acreage0.05
  • Area383 - N Indialantic
  • Assoc/HOA ContactAbacos Condo Association
  • Association Fee IncludedCable TV, Maintenance Grounds, Maintenance Structure, Trash and Water
  • Baths - Full3
  • Baths - Total3
  • Bedrooms3
  • CityIndialantic
  • Community FeesNo
  • ConstructionConcrete
  • ContingentActive Under Contract
  • CoolingCentral Air
  • CountyBrevard
  • DirectionsHighway A1A N/S to 1725 N Highway A1A
  • Dwelling ViewBeach, Ocean and Water
  • Equipment/AppliancesDishwasher, Disposal, Dryer, Electric Cooktop, Electric Oven, Electric Water Heater, Microwave, Refrigerator, Washer and Wine Cooler
  • Exterior FeaturesBalcony and Impact Windows
  • FloorTile and Wood
  • FurnishedUnfurnished
  • General County LocationSouth
  • HeatCentral
  • Interior FeaturesBreakfast Bar, Ceiling Fan(s), Entrance Foyer, Guest Suite, Kitchen Island, Open Floorplan, Primary Bathroom -Tub with Separate Shower, Smart Thermostat, Vaulted Ceiling(s) and Walk-In Closet(s)
  • List Price/SqFt$635.03 / sqft
  • Listing ID1063630
  • Listing StatusActive Under Contract
  • Lot DescriptionFew Trees
  • Lot SqFt2,178 sqft
  • ParkingAttached, Garage and Garage Door Opener
  • Pet RestrictionsCats OK, Dogs OK, Number Limit, Size Limit and Yes
  • PetsCats OK, Dogs OK, Number Limit, Size Limit and Yes
  • PoolNo
  • PossessionClose Of Escrow
  • Private PoolNo
  • Property TypeResidential
  • Rental Restrictions6 Months
  • Residential Sub-TypeCondo
  • Security/SafetySecured Lobby
  • Showing24 Hour Notice,Appointment Only,Listing Agent Must Accompany,Lockbox,No Sign,Other
  • Sold Terms CodeCash,Conventional
  • SqFt - Living2,244 sqft
  • State/ProvinceFL
  • StatusActive Under Contract
  • Status Change DateTuesday, December 16th, 2025
  • Street DirectionN
  • Street NameHighway A1A
  • Street Number1725
  • SubdivisionAbacos
  • Tax Year2023
  • To Be ConstructedNo
  • Total Floors in Building5
  • Total Floors/Stories5
  • Total Garage Spaces2
  • UnBranded Virtual TourClick Here
  • Unit Number402
  • UtilitiesCable Available, Electricity Connected, Sewer Connected and Water Connected
  • WaterfrontYes
  • Waterfront TypeDeeded Beach Access,Ocean Front
  • Year Built2019
  • Zip Code32903

Share

Subscribe