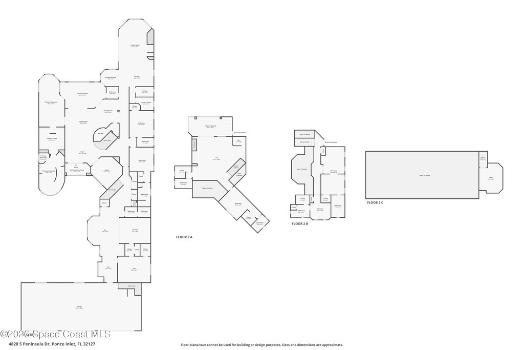
4828 S Peninsula Drive, Ponce Inlet, FL 32127

7

BEDROOMS

9

BATHROOMS

$5,200,000

PRICE

7,986

SQUARE FEET

Split Bedroom: N/A

Subdivision: None

MLS#: 1069444


Status: Active

For More Information Call:

(321) 543-4374

Property Details:

Discover waterfront living at it's finest in this absolutely exquisite, direct riverfront estate w/new gated entrance sitting on almost 1.5 acre of pristine landscape plus 130 ft of frontage on deep waterway. Brand NEW TILE ROOF 2022. Nearly 8,000 sq ft w/ 7 BRs/9 BAs + a gym, office & theatre room. Primary suite boasts sitting area, big walk through closet to elegant bath w/jetted tub + walk-in shower. Gourmet kitchen has huge island w/gas range, supersized pantry and new sub zero refrigerator and opens to family room w/ new double pocket, impact sliders to pool. 2nd level has giant game room w/balcony over river. Another primary suite in the east wing on top floor has living area and bar. Ext painted 2025 w/ Rhino Shield 25 year warranty. Outside enjoy stunning, salt pool w/ new pool heater, waterfall, summer kitchen and firepit over expansive deep water dock w/ boat lift and new floating dock for jet skis. 7 car garage has second level cooled office. SEE FOR LIST OF UPGRADES.


Broker Reciprocity Logo

This listing is courtesy of Premier Properties Real Estate. Property Listing Data contained within this site is the property of Brevard MLS and is provided for consumers looking to purchase real estate. Any other use is prohibited. We are not responsible for errors and omissions on this web site. All information contained herein should be deemed reliable but not guaranteed, all representations are approximate, and individual verification is recommended.

  • Acreage1.40
  • Area999 - Out of Area
  • Baths - Full8
  • Baths - Half1
  • Baths - Total9
  • Bedrooms7
  • CityPonce Inlet
  • Community FeesNo
  • ConstructionBlock, Concrete and Stucco
  • CoolingCentral Air and Multi Units
  • CountyVolusia
  • DirectionsDrive south on S Atlantic Ave, turn right on Harbor Village Rd, turn left on S Peninsula Drive. Home is on the right.
  • Equipment/AppliancesConvection Oven, Dishwasher, Disposal, Double Oven, Dryer, Electric Oven, Electric Water Heater, Gas Cooktop, Ice Maker, Microwave, Plumbed For Ice Maker, Refrigerator and Washer
  • Exterior FeaturesBalcony, Boat Lift, Dock, Fire Pit, Impact Windows, Outdoor Kitchen, Outdoor Shower and Storm Shutters
  • FireplaceWood Burning
  • FloorCarpet, Marble and Tile
  • FurnishedUnfurnished
  • General County LocationOut of Brevard
  • HeatCentral and Electric
  • Interior FeaturesBreakfast Bar, Breakfast Nook, Built-in Features, Butler Pantry, Ceiling Fan(s), Entrance Foyer, Guest Suite, His and Hers Closets, In-Law Floorplan, Kitchen Island, Open Floorplan, Pantry, Primary Bathroom -Tub with Separate Shower, Split Bedrooms, Walk-In Closet(s), Wet Bar and Wine Cellar
  • List Price/SqFt$651.14 / sqft
  • Listing ID1069444
  • Listing StatusActive
  • Lot DescriptionMany Trees, Sprinklers In Front and Sprinklers In Rear
  • Lot Dimensions97.0 ft x 633.0 ft
  • Lot SqFt61,402 sqft
  • ParkingAttached, Garage and Garage Door Opener
  • Pet RestrictionsCats OK and Dogs OK
  • PetsCats OK and Dogs OK
  • PoolYes
  • Pool FeaturesGas Heat, Heated, Salt Water and Waterfall
  • PossessionClose Of Escrow
  • Private PoolYes
  • Property TypeResidential
  • Residential Sub-TypeSingle Family Residence
  • Road SurfacePaved
  • RoofTile
  • Security/SafetyEntry Phone/Intercom, Security Gate and Security System Owned
  • Showing24 Hour Notice,Appointment Only
  • Sold Terms CodeCash,Conventional,FHA,VA Loan
  • SqFt - Living7,986 sqft
  • State/ProvinceFL
  • StatusActive
  • Status Change DateSunday, February 15th, 2026
  • Street DirectionS
  • Street NamePeninsula
  • Street Number4828
  • Street SuffixDrive
  • SubdivisionNone
  • Tax Year2025
  • Taxes$53,115.60
  • To Be ConstructedNo
  • Total Garage Spaces7
  • UnBranded Virtual TourClick Here
  • UtilitiesCable Connected, Sewer Connected and Water Connected
  • WaterfrontYes
  • Waterfront TypeIntracoastal,Navigable Water,River Access,River Front
  • Year Built1996
  • Zip Code32127

Share

Subscribe