526 Jefferson Avenue, Cape Canaveral, FL 32920

4

BEDROOMS

5

BATHROOMS

$1,099,900

PRICE

2,550

SQUARE FEET

Split Bedroom: N/A

Subdivision: Barnes And Haynes Resubdivision

MLS#: 1070439


Status: Active

For More Information Call:

(321) 543-4374

Property Details:

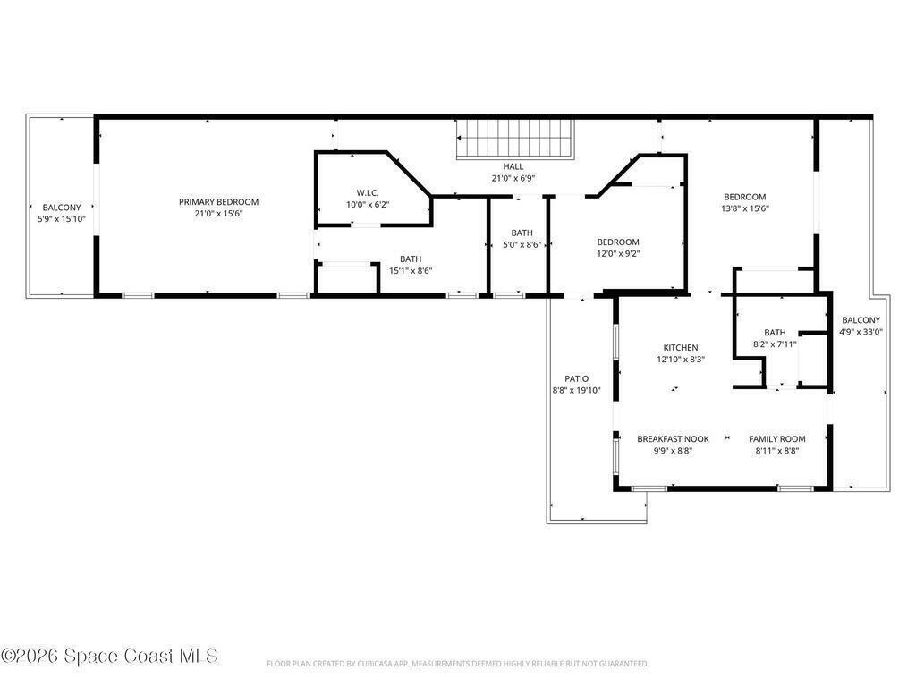
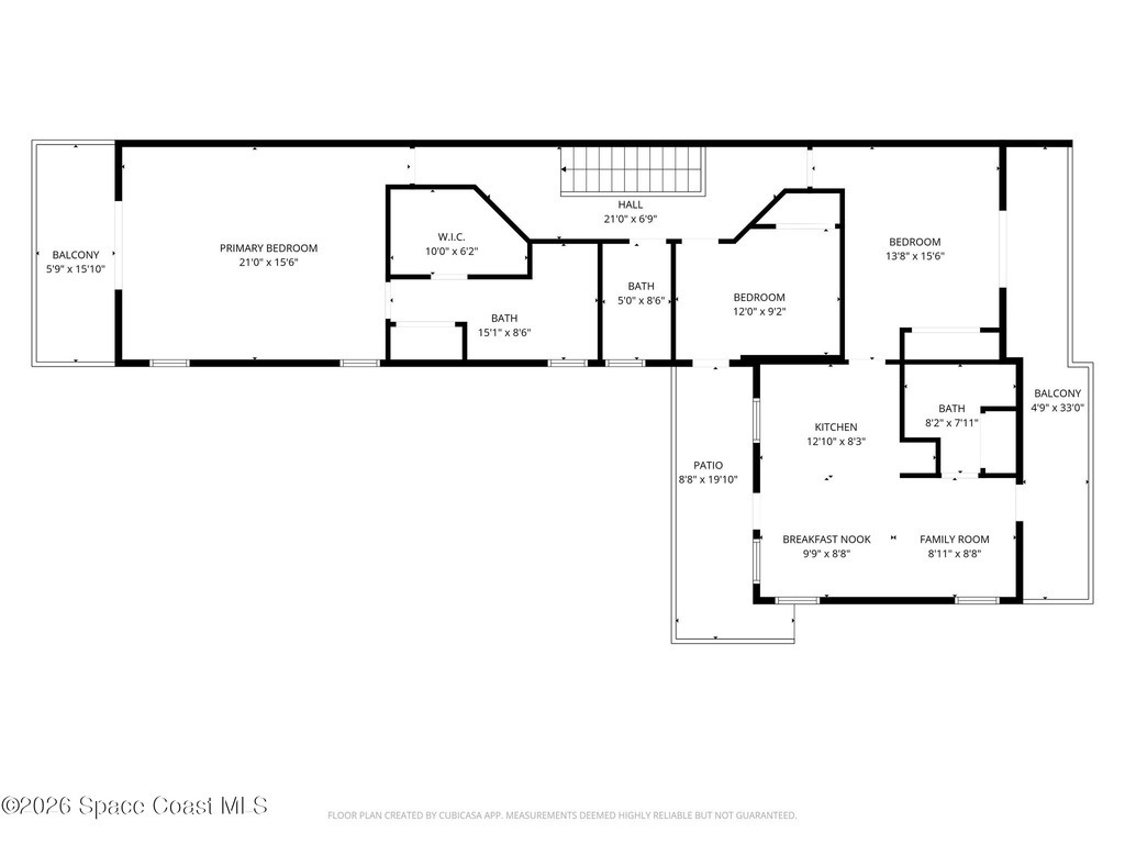
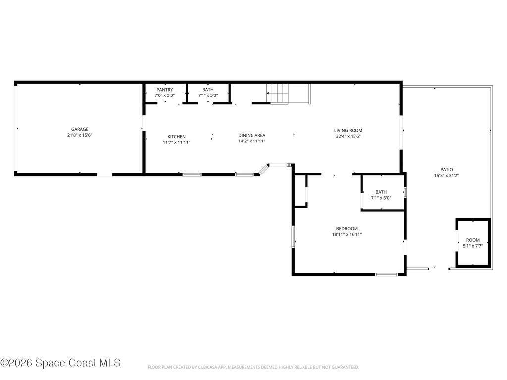
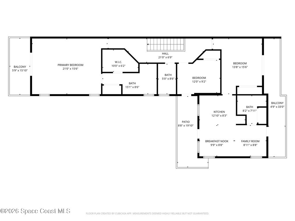
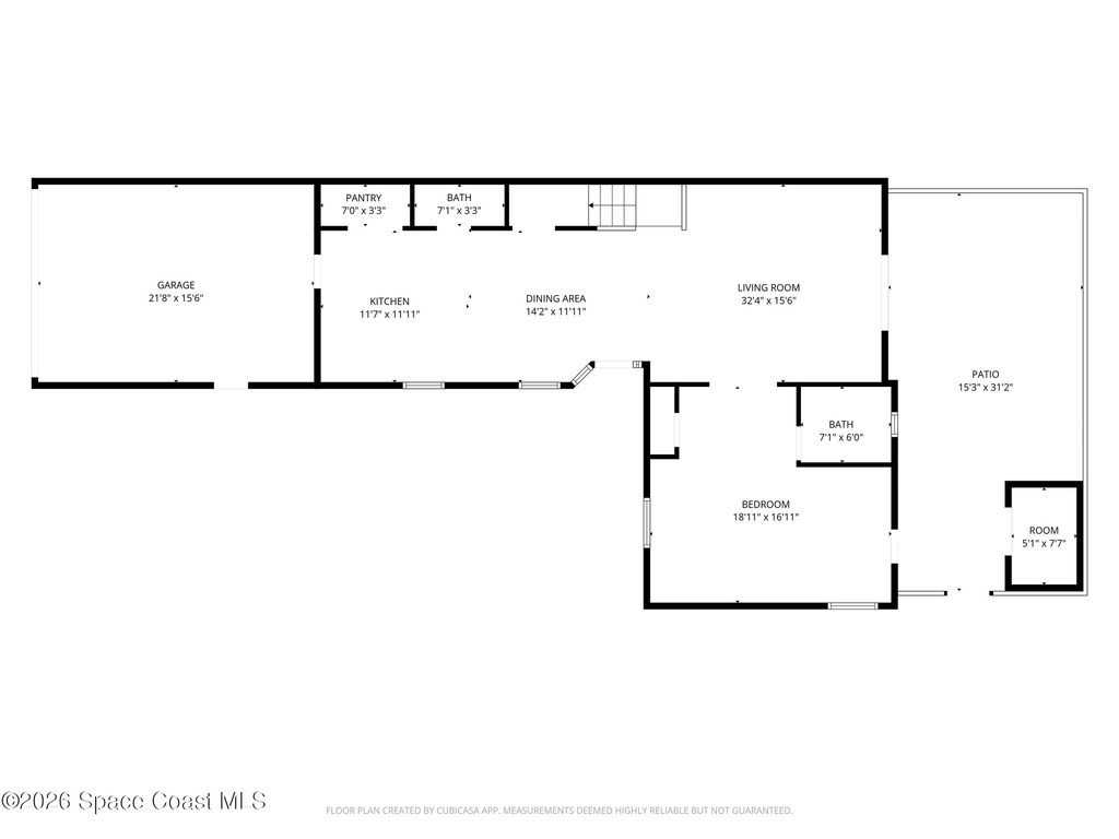
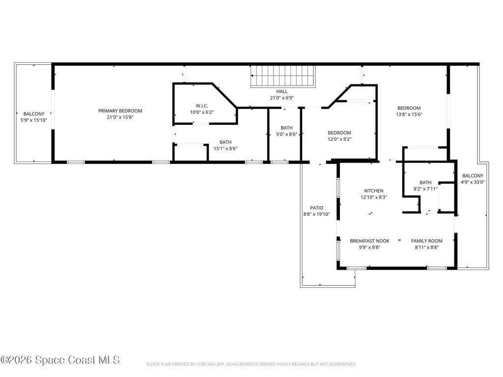
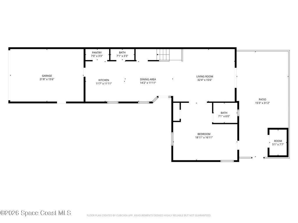
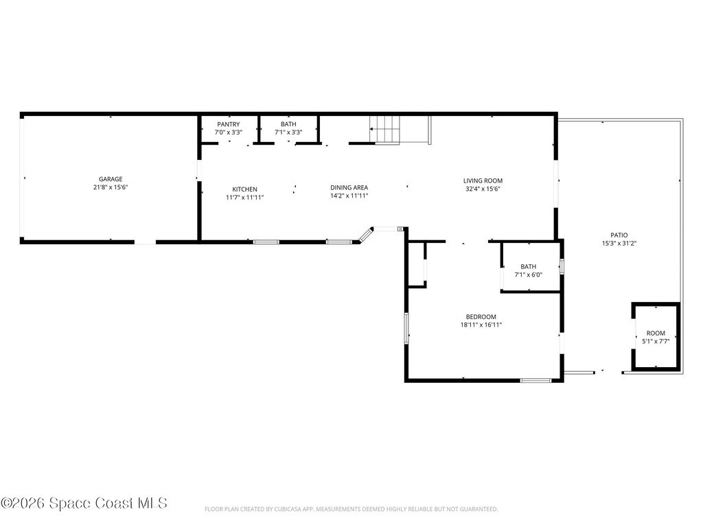
Live the ultimate coastal lifestyle just one block from the beach in this elevated 4-bedroom, 4.5-bath multi-generational retreat. Wake to ocean views from the south-facing primary balcony and enjoy the flexibility of three potential private living quarters under one roof. The home features a private upstairs one-bedroom apartment with its own living room and full kitchen, a spacious open-concept main kitchen downstairs, and a beautifully designed studio ensuite with kitchenette--perfect for guests, extended family, or three generations living comfortably together. Every detail has been thoughtfully upgraded, including two new HVAC systems, all-new ductwork and electrical, tankless water heater, renovated kitchen and four baths, new tile flooring throughout, resurfaced driveway and backyard, refreshed balconies, fresh interior and exterior paint, and a 220-amp outlet for a hot tub or EV charger. Come see a home that can suit all of your needs, whether for family, investment, or both!


Broker Reciprocity Logo

This listing is courtesy of Market Connect Realty, LLC. Property Listing Data contained within this site is the property of Brevard MLS and is provided for consumers looking to purchase real estate. Any other use is prohibited. We are not responsible for errors and omissions on this web site. All information contained herein should be deemed reliable but not guaranteed, all representations are approximate, and individual verification is recommended.

  • Acreage0.07
  • Area271 - Cape Canaveral
  • Baths - Full4
  • Baths - Half1
  • Baths - Total5
  • Bedrooms4
  • CityCape Canaveral
  • Community FeesNo
  • ConstructionBlock and Stucco
  • CoolingCentral Air and Multi Units
  • CountyBrevard
  • DirectionsFrom north Atlantic Ave (A!A), head east on towards the Ocean on Harrison Avenue. Turn left on Ridgewood Avenue. Continue 4 blocks and the home will be at the corner of Jefferson and Ridgewood Avenue on the left side.
  • Dwelling ViewOcean and Other
  • Equipment/AppliancesDishwasher, Disposal, Dryer, Electric Oven, Electric Range, Freezer, Ice Maker, Microwave, Refrigerator, Tankless Water Heater and Washer
  • Exterior FeaturesBalcony, Courtyard and Outdoor Shower
  • FireplaceWood Burning
  • FloorTile
  • FurnishedPartially
  • General County LocationCentral
  • HeatCentral and Electric
  • Interior FeaturesBreakfast Bar, Ceiling Fan(s), Guest Suite, His and Hers Closets, In-Law Floorplan, Open Floorplan, Primary Downstairs, Vaulted Ceiling(s) and Walk-In Closet(s)
  • List Price/SqFt$431.33 / sqft
  • Listing ID1070439
  • Listing StatusActive
  • Lot DescriptionCorner Lot and Sprinklers In Front
  • Lot SqFt3,049.20 sqft
  • ParkingAdditional Parking, Attached, Garage and Garage Door Opener
  • Pet RestrictionsYes
  • PetsYes
  • PoolNo
  • PossessionClose Of Escrow
  • Private PoolNo
  • Property TypeResidential
  • Rental Restrictions1 Week
  • Residential Sub-TypeSingle Family Residence
  • Road SurfaceAsphalt
  • RoofShingle
  • ShowingAppointment Only,Lockbox
  • Sold Terms CodeCash,Conventional,VA Loan
  • SqFt - Living2,550 sqft
  • State/ProvinceFL
  • StatusActive
  • Status Change DateThursday, February 26th, 2026
  • Street NameJefferson
  • Street Number526
  • Street SuffixAvenue
  • StyleHalf Duplex
  • SubdivisionBarnes And Haynes Resubdivision
  • Tax Year2025
  • Taxes$5,981.77
  • To Be ConstructedNo
  • Total Garage Spaces1
  • UnBranded Virtual TourClick Here
  • UtilitiesCable Connected, Electricity Connected, Sewer Connected and Water Connected
  • WaterfrontNo
  • Year Built1987
  • Zip Code32920

Share

Subscribe