Hazel Lane, Malabar, FL 32950

4

BEDROOMS

3

BATHROOMS

$749,900

PRICE

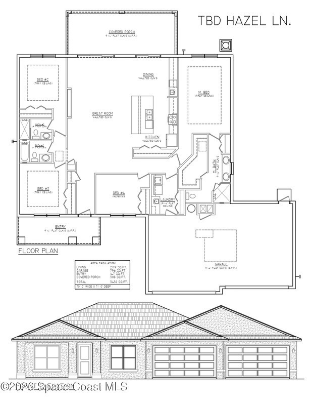
2,179

SQUARE FEET

Split Bedroom: N/A

Subdivision: None

MLS#: 1073170


Status: Active

For More Information Call:

(321) 543-4374

Property Details:

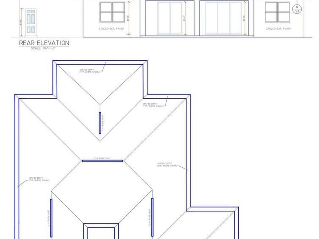
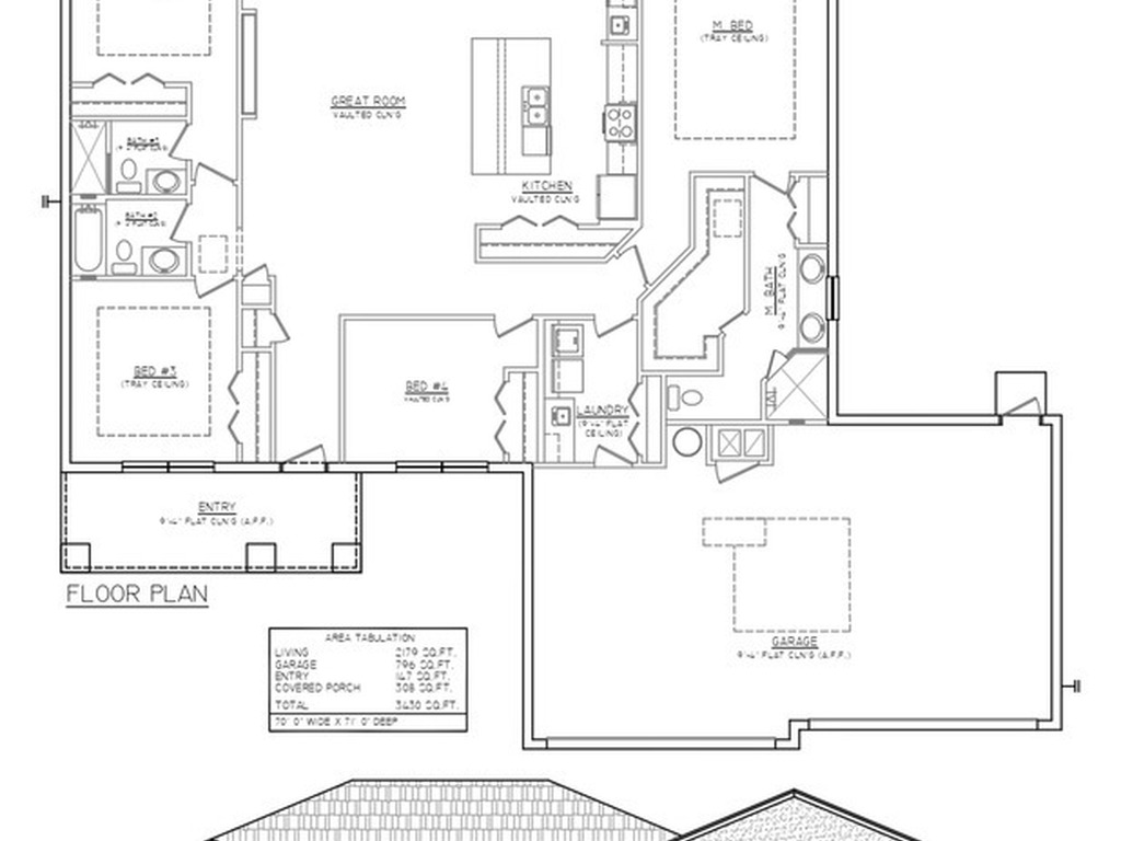
Brand New Custom Construction | 4-Car Garage | 1.4 Acre Lot | Completion Summer 2026. Experience luxury living in this stunning to be built custom home, situated on an expansive 1.4-acre lot in a private nature setting. This home features high-end finishes, thoughtful design, and builder warranties for peace of mind. Step inside to an open-concept floor plan with vaulted and soaring ceilings, fireplace, creating a bright and spacious atmosphere perfect for modern living and entertaining. The designer kitchen is a true centerpiece, featuring: Large center island, Quartz countertops, 42'' custom wood cabinets with crown molding, Stainless steel appliances, Extended wet bar with sink and beverage cooler. The split-bedroom layout provides privacy, while the luxurious primary suite includes: Elegant tray ceiling, Large walk-in closets, Double sink Quartz vanity, Custom tiled walk-in shower. Additional highlights include: Upgraded 9'' x 47'' hardwood-style porcelain plank tile throughout


Broker Reciprocity Logo

This listing is courtesy of Waterman Real Estate, Inc.. Property Listing Data contained within this site is the property of Brevard MLS and is provided for consumers looking to purchase real estate. Any other use is prohibited. We are not responsible for errors and omissions on this web site. All information contained herein should be deemed reliable but not guaranteed, all representations are approximate, and individual verification is recommended.

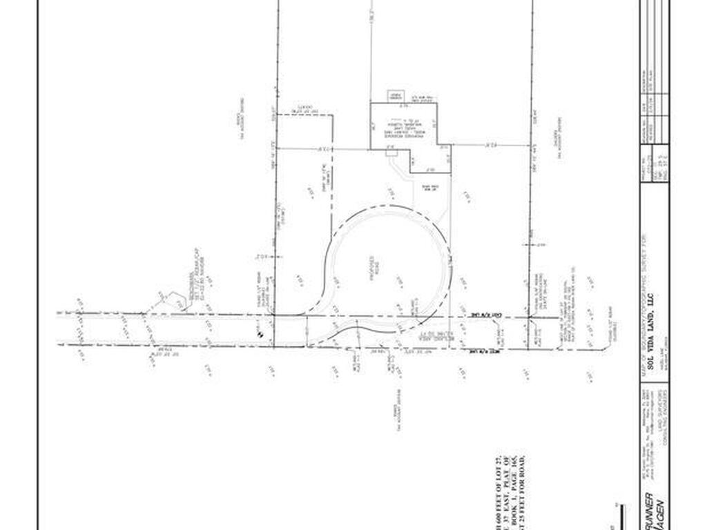
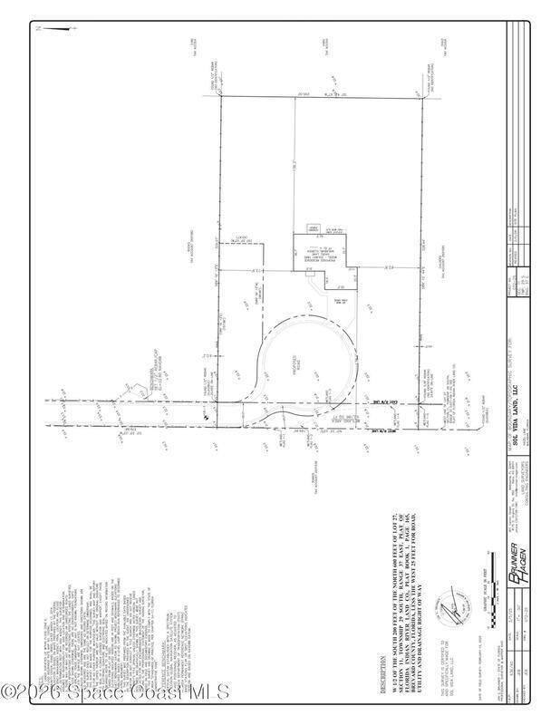
  • Acreage1.40
  • Area342 - Malabar/Grant-Valkaria
  • Baths - Full3
  • Baths - Total3
  • Bedrooms4
  • CityMalabar
  • Community FeesNo
  • ConstructionBlock and Stucco
  • CoolingCentral Air and Electric
  • CountyBrevard
  • DirectionsMalabar, east of Babcock, turn south on Weber Rd, left on Atz, to right on Hazel
  • Equipment/AppliancesDishwasher, Electric Range, Electric Water Heater, Microwave and Wine Cooler
  • Exterior FeaturesStorm Shutters
  • FloorCarpet and Tile
  • FurnishedUnfurnished
  • General County LocationSouth
  • HeatCentral and Electric
  • Interior FeaturesBreakfast Bar, Ceiling Fan(s), Entrance Foyer, Kitchen Island, Open Floorplan, Pantry, Primary Bathroom - Shower No Tub, Split Bedrooms, Walk-In Closet(s) and Wet Bar
  • List Price/SqFt$344.15 / sqft
  • Listing ID1073170
  • Listing StatusActive
  • Lot DescriptionCleared
  • Lot SqFt60,984 sqft
  • ParkingAttached and Garage Door Opener
  • Pet RestrictionsYes
  • PetsYes
  • PoolNo
  • PossessionClose Of Escrow
  • Private PoolNo
  • Property TypeResidential
  • Residential Sub-TypeSingle Family Residence
  • Road SurfaceAsphalt
  • RoofShingle
  • RoomsBedroom 2, Bedroom 3, Bedroom 4, Dining Room, Great Room, Kitchen, Other Room and Primary Bedroom
  • Security/SafetySmoke Detector(s)
  • ShowingAppointment Only,Call Listing Agent
  • Sold Terms CodeCash,Conventional,FHA,USDA Loan,VA Loan
  • SqFt - Living2,179 sqft
  • State/ProvinceFL
  • StatusActive
  • Status Change DateSaturday, March 28th, 2026
  • Street NameHazel
  • Street SuffixLane
  • StyleContemporary
  • SubdivisionNone
  • Tax Year2022
  • Taxes$333.26
  • To Be ConstructedYes
  • Total Garage Spaces4
  • UtilitiesCable Available and Electricity Available
  • WaterfrontNo
  • Year Built2026
  • Zip Code32950
  • ZoningResidential

Share

Subscribe